Land- og sprogmenu
  • Danmark (DK)
  • Deutschland (DE)
  • France (FR)
  • Belgique (BE)
  • Nederland (NL)
  • Lëtzebuerg (LU)
  • Schweiz (CH)
  • Österreich (AT)
  • International
  • Sprog
  • Forside
  • Om BIRCO
    • Om BIRCO
      • BIRCO GmbH
      • Om os
      • Adresser
      • Integreret managementsystem
    • Kontakt
      • Forhandler
  • Produkter
    • Skybrudsrender
      • Produktoversigt
      • BIRCOsir
      • BIRCOmax-i
  • Service
    • Downloads
      • Godkendelser
      • Ydeevneerklæringer
    • Serviceydelser
      • Boringer og skæringer
  • Kontakt
Planung Einbau Berechnung Verlegeplane Entwässerungssysteme
Service

Einbaubeispiele

  1. Du er her.:
    1. Service
    2. Installationsvejledning
    3. BIRCOmax-i®/BIRCOprime®

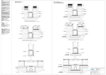
Einbau BIRCOmax-i®/BIRCOprime® als PDF und .dwg

Einbauanleitung BIRCOmax-i® / BIRCOprime®
Einbauanleitung BIRCOmax-i® / BIRCOprime®

[PDF, 604,70 KB ]

Download
Einbauanleitung BIRCOmax-i®_2-tlg. Sinkkasten
Einbauanleitung BIRCOmax-i®_2-tlg. Sinkkasten

[PDF, 624,97 KB ]

Download
dwg

Einbauanleitung BIRCOmax-i® / BIRCOprime®

dwg

Einbauanleitung BIRCOmax-i®_2-tlg. Sinkkasten

Dansk forhandler: ScanPipe+45 6376 3030

Åbningstider:
Man–torsdag 7:00 - 16:00
Fredag 7:00 - 15:00

BIRCOsocial
  • facebook
  • twitter
  • YouTube
  • Belastningsklasser
  • Cookie-indstillinger
  • Om os
  • Impressum
  • Datenschutz